Maison de 4 volumes, pour une surface habitable de 132 m², comprenant 2 chambres, 1 bureau et 1 grande terrasse.
La California présente l’avantage d’être complètement modulable. Nous pouvons facilement ajouter des modules afin de réaliser un projet sur mesure. Dans ce cas, un devis personnalisé sera calculé et vous sera proposé.
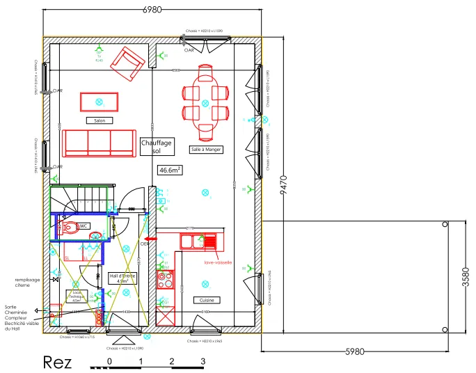
Le rez-de-chaussée de cette villa vous offre une salle-à-manger ouverte à la fois sur votre salon et sur votre cuisine. Ces ouvertures offrent une plus grande convivialité lors des repas et soirées.
À l’étage de cette maison, vous trouverez deux grandes et spacieuses chambres. La plus grande est de 18.5 mètres carrés. La deuxième chambre, de 14 mètres carrés, donne un accès direct sur une superbe terrasse de 18 mètres carrés. La terrasse est aussi accessible via le palier du premier étage. La salle de bain avec baignoire et WC de cette maison ainsi que le bureau se trouvent également au premier étage.
| Modèle California – base HTVA (1 504 €/m²) | 198 540 € |
| Pack « permis » | 6 400 € |
| Pack « architecte » (3,9% du montant de base) | 8 006 € |
| Fondations | 5 750 € |
| Assurance garantie décennale (0,48%) | 981 € |
| Panneaux photovoltaïques avec onduleur (3.900 Wc) | 5 555 € |
| Total hors TVA | 225 231 € |
|---|---|
| TVA 21% | 47 299 € |
| Total TVA comprise | 272 530 € |







Créé par A2com – En naviguant sur ce site, vous acceptez notre politique de confidentialité.