Of het nu in de stad of op het platteland is, het Louisiane-model past natuurlijk in zijn omgeving en biedt een ideale ruimte voor uw gezin en om vrienden te ontvangen.
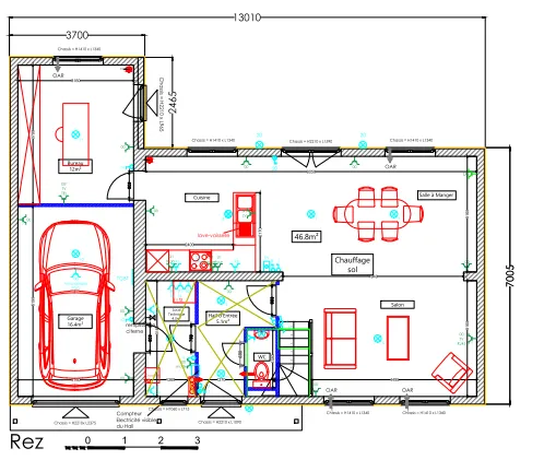
Deze villa met 5 modules biedt op de begane grond een ruime leefruimte die volledig open is naar de eetkamer en keuken. Dankzij deze open indeling is er voldoende ruimte en licht.
U heeft ook de beschikking over een grote kantoorruimte van 12 m² en een garage.
Op de eerste verdieping vindt u drie prachtige slaapkamers. De eerste slaapkamer heeft een oppervlakte van 17 m². De tweede slaapkamer, ook met een oppervlakte van 17 m², heeft directe toegang tot een kleedkamer van meer dan 10 m². De derde slaapkamer is 13,2 m² groot. In de badkamer bevinden zich 2 wastafels, een toilet en een groot bad.
U heeft de mogelijkheid om nog eens 36 m² toe te voegen met de optie voor een uitbreiding om toegang te krijgen tot de zolder.
| Model Louisiane – basisprijs exclusief BTW (1 233 €/m²) | 224 467 € |
| “Vergunning”-pakket | 6 400 € |
| “Architect”-pakket (3,9% van het basistarief) | 9 094 € |
| Funderingen | 7 600 € |
| Tienjarige garantieverzekering (0,48%) | 1 114 € |
| Zonnepanelen met omvormer (3 900 Wp) | 5 555 € |
| Totaal exclusief BTW | 254 230 € |
|---|---|
| BTW 21% | 53 388 € |
| Totaal inclusief BTW | 307 618 € |






